- Liittynyt
- 13.01.2017
- Viestejä
- 2 146
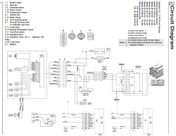
Itsellä on Eberin kauko-ohjaus mennyt jotenkin sököksi. Kauko-ohjain toimii, mutta ei yhdistä laitteeseen. Huolto-arvio oli tuhat euroa kun ei tiedetä vikaa niin menee selvityksessä. Huolto sanoi kuitenkin, että tuohon voisi asentaa jonkun toisenlaisen kauko-ohjauksen itse, sim-kortilla toimiva? Onko tuollaisesta kokemuksia?
Siis kauko-ohjain lähettää signaalin mutta Eberspächer ei käynnisty?
Saako lämmittimen käymään testerin kanssa?
Onko kyseessä tehdasasenteinen lämmitin?
